В Питере нужен магазинчик.

Автор Fugu, 02 декабря, 2010г., 17:17

« предыдущая - следующая »

0 Пользователей и 1 гость просматривают эту тему.



Fugu

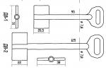
В январе будет человек в Питере, и мне нужно найти где можно приобрести заготовочки,исходник ключа на фото.

длинна 75мм, стебель в диаметре 7.5мм или 8мм, две бородки больше 15мм,направляющее отверстие обязательно диаметр любой.
Нашёл только силку по 65р.
Может есть что подешевле?

barakuda

когда ключ работает идеально-душа поет...

keys777

Цитата: barakuda от 02 декабря, 2010г., 18:29
заготовка д8-1 или д8-2.

Проиллюстрирую для удобства Fugu.

Marlboro

Такой эксклюзив дешёвым не бывает :)
ИМХО, 65 рублей за штуку - нормальная цена для такой заготовки.
С уважением, к читающим, Молодовский Владимир.
www.dvernoydoktor.ru
Решение Ваших проблем с ключами, замками и дверями в Нижнем Новгороде.

vitali

 Та гдеж вы такие цены на эти заготовки берете? 24руб красная цена.Но эти замки имеют
туговатые пружины.Желательна польская стальная трубка. Хотя месяца три назад делал
два ключа из максим.Пока не приходили.
И все таки они открываются...

Fugu

Спасибо vitali за JMA, уже выработал те что ты мне брал MAX-2G.
Как оказалось старые добрые сейфы города Калинина лучше всего противостоят мародёрам от революции :)
Уважаемые, мне бы еще и адресок или телефоны контор торгующих заготовками в питере.

Marlboro

На память точно не помню почему, но МАКС не подходит по тот ключ, что на картинке сверху.
Кажется, из-за ширины бородки.
С уважением, к читающим, Молодовский Владимир.
www.dvernoydoktor.ru
Решение Ваших проблем с ключами, замками и дверями в Нижнем Новгороде.

barakuda

03 декабря, 2010г., 17:33 #7 Последнее редактирование: 03 декабря, 2010г., 17:36 от barakuda
макс на такой ключ-барство. :D хотя если клиент платит-не вопрос. :D резать копию на станке с такого оригинала-задница полная. :o у макса полная ширина заготовки чуть больше 30. :) 
когда ключ работает идеально-душа поет...



Материал сайта ZamkiDveri.org, размещенный в разделах: «Представительства компаний», «Акции, скидки», носит исключительно информационный характер и ни при каких условиях не является публичной офертой, определяемой положениями Статьи 435, 437, 494 Гражданского кодекса РФ. Для получения подробной и точной информации о стоимости продукции, скидках, акциях и спецпредложениях, пожалуйста, обращайтесь напрямую к производителям или официальным дилерам. Указанные цены, технические описания продуктов, в т.ч. в виде графических изображений, являются предварительными и не гарантируются нашим сайтом.